1. Cíl projektu: Optimalizace energetické bilance a udržitelnost
Primárním cílem tohoto záměru bylo snížení energetické náročnosti objektu a optimalizace jeho celkové energetické bilance. Projekt zajistil úsporu provozních nákladů a přispívá tak k dlouhodobé udržitelnosti.
2.Obnova historického odkazu ve spolupráci s památkovou péčí.
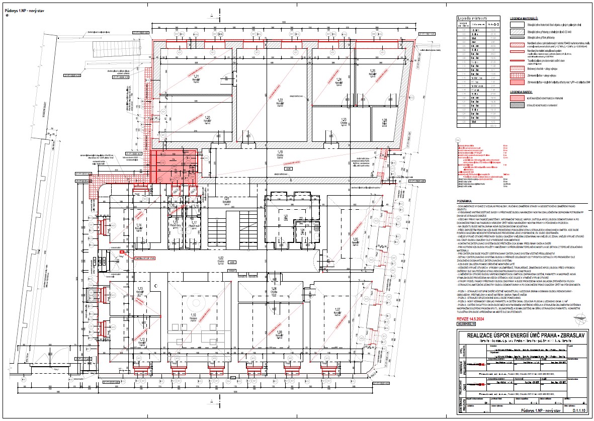
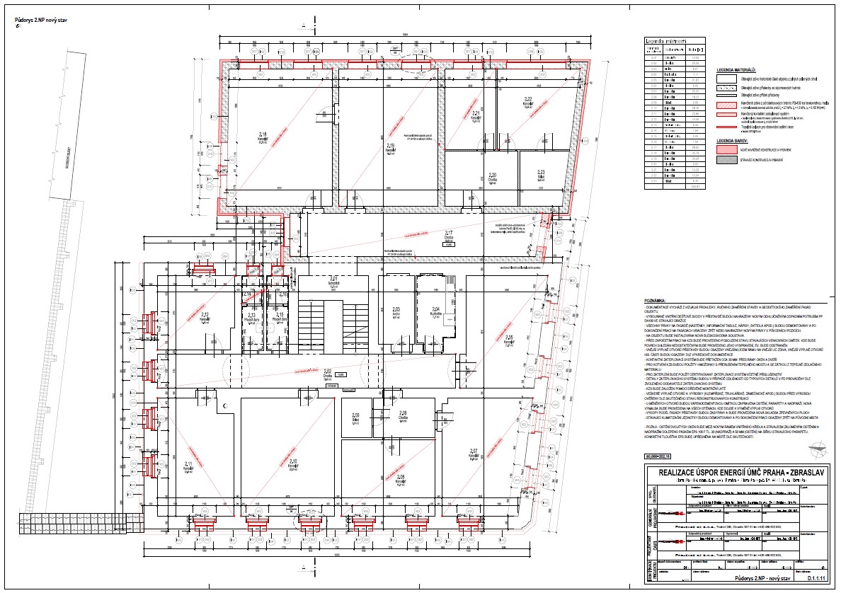
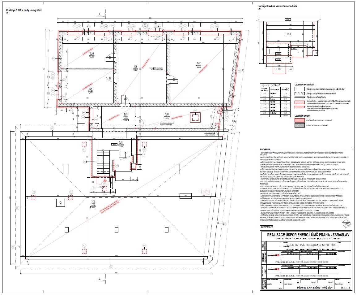
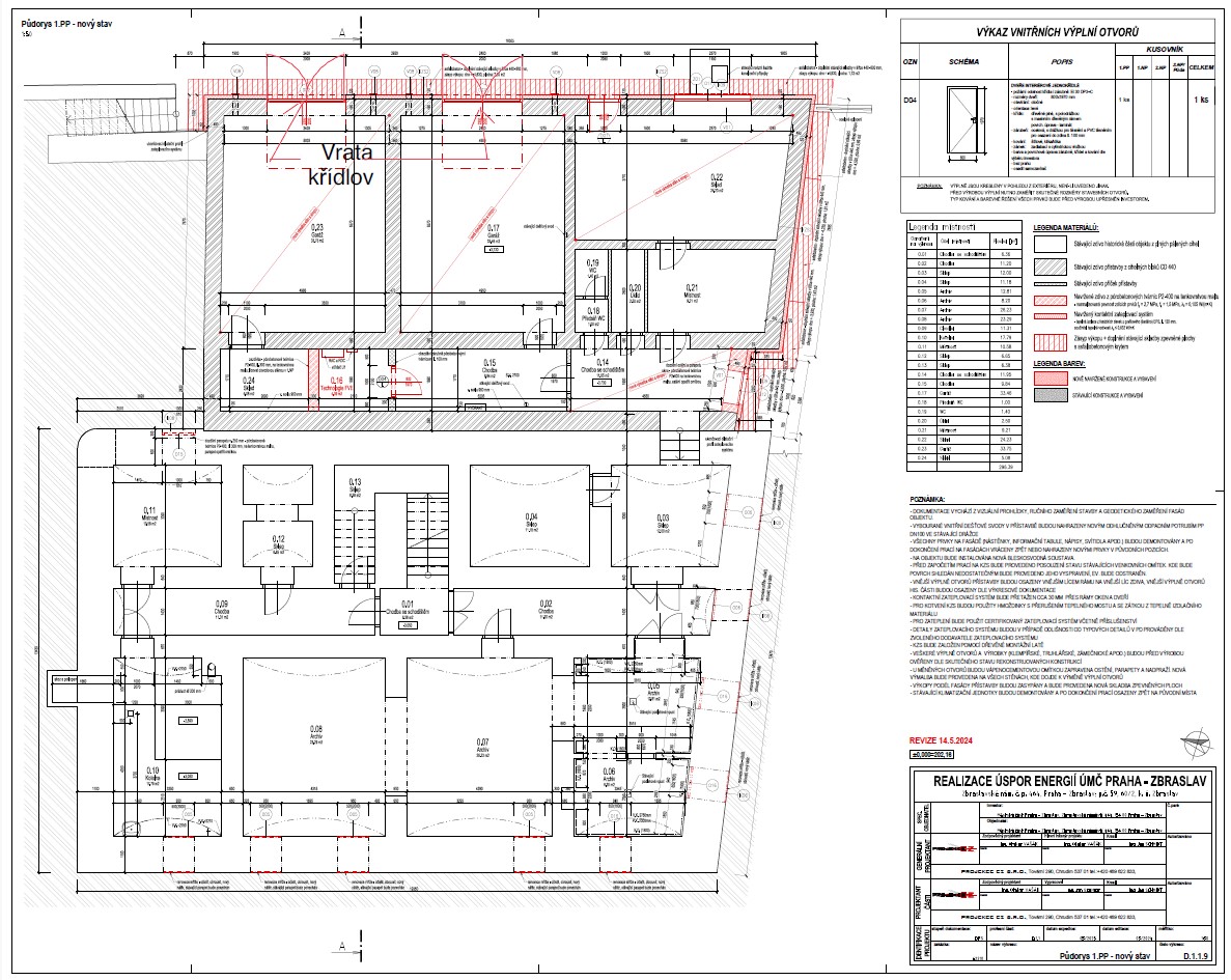
Významným architektonickým přínosem a klíčovou součástí projektu byla obnova původního historického vzhledu budovy. Konkrétní provedení detailů a výběr barevnosti byl řešen se zástupcem památkové péče, neboť se objekt nachází v památkové zóně města. Byla provedena výměna nevhodných novodobých oken za špaletová okna v jejich předpokládaném historickém vzhledu. Novodobá plechová krytina na střeše budovy byla nahrazena klasickou pálenou krytinou. Díky těmto stavebním úpravám se objektu podařilo navrátit jeho původní historický vzhled, který nyní lépe zapadá do zachované historické lokality Zbraslavského náměstí.
3.Komplexní zásah do obvodového pláště
Rekonstrukce zahrnovala také stavební úpravy novodobější přístavby objektu, kde bylo provedeno zateplení obvodového pláště a výměna oken za eurookna s požadovanými tepelněizolačními vlastnostmi. Zateplena byla také podlaha podkroví historické budovy. Na plochou střechu přístavby byly po její opravě a zateplení, umístěny FVE panely, které nyní pokrývají značnou část spotřeby elektrické energie úřadu.
Závěr:
Projekt revitalizace budovy MČ- Zbraslav vhodně propojil péči o historicko architektonického dědictví s požadavky na moderní energeticky úspornou budovu.





